Bilocale in vendita

Trieste, Via Valdirivo - Centro
€ 240.000
2 locali 2 locali
48 Mq 48 Mq
1 bagno 1 bagno

Bilocale in vendita

Trieste, Via Valdirivo - Centro

Descrizione annuncio

NOVE VALDIRIVO

Vivere a pochi passi dal mare e dai punti più iconici di Trieste, raggiungendo Piazza Unità d'Italia e il Canale di Ponterosso in pochissimi minuti.

All'interno di una palazzina interamente rivisitata e ristrutturata con cura e sapienza. Le pietre a vista degli archi al piano terra donano alla preziosa autorimessa un fascino d'epoca. L'edificio è dotato di pannelli solari, coibentazione esterna, infissi in triplo vetro e nessuna barriera architettonica.

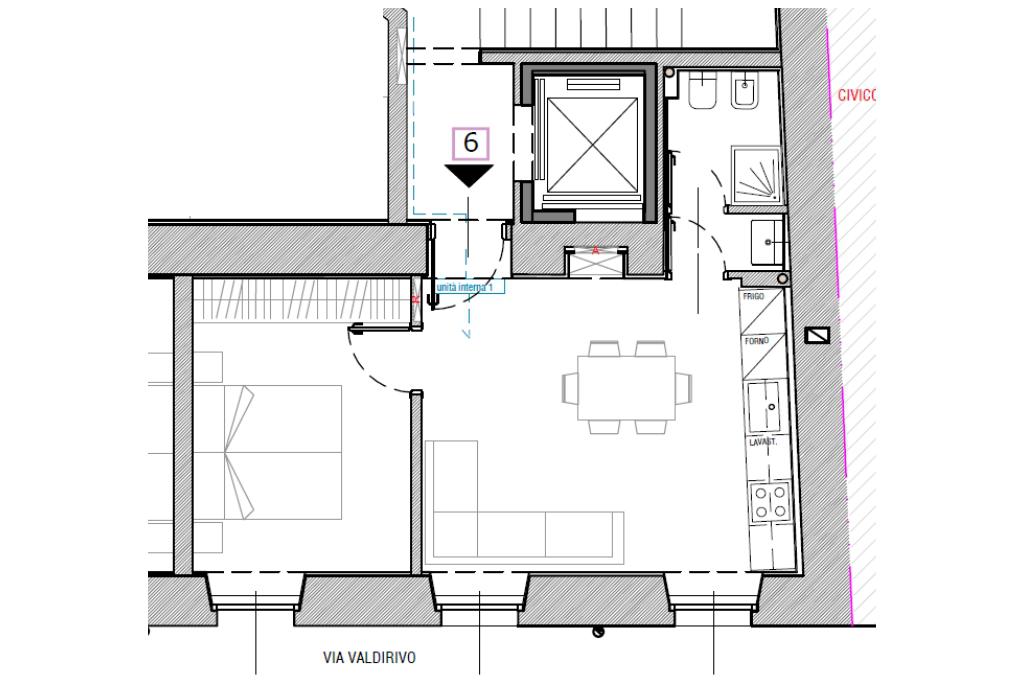
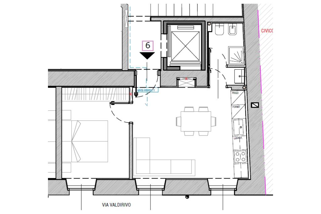
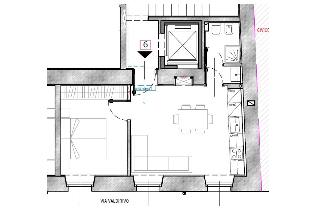
Al suo interno troviamo una zona giorno con angolo cottura, il bagno completo con antibagno e la camera matrimoniale.

Il riscaldamento è con gestione autonoma dei consumi e ogni ambiente è regolabile autonomamente.

Se vuoi visitare questo o gli altri appartamenti appena realizzati chiamaci per fissare un appuntamento.

Per ulteriori informazioni contattaci allo 040.3721398, via mail tscc4@tecnocasa.it o WhatsApp 3487542786. Lo studio Trieste Centro srl affiliato a Tecnocasa è a disposizione per valutazioni e consulenze per qualsiasi tipologia di immobile.

Mostra tutto

Nelle vicinanze

Trasporto pubblico Trasporto pubblico
stazione di Trieste Centrale
stazione di Trieste Centrale
470 m
Trieste Campo Marzio Smistamento
Trieste Campo Marzio Smistamento
1,9 Km
Piazza Oberdan
Piazza Oberdan
270 m
Piazza Casali
Piazza Casali
550 m
Trasporto pubblico
130 m
Ricariche auto elettriche Ricariche auto elettriche
EnelDrive Granatieri
560 m
Eneldrive Ospedale Maggiore Di Trieste
770 m
Eneldrive Molo Sartorio
1,2 Km
Eneldrive Ginestre
1,3 Km
Eneldrive Comune Di Trieste - Consigli Circoscrizionali
2,0 Km
Scuole Scuole
Università degli Studi di Trieste - Scuola Superiore di Lingue Moderne per Interpreti e Traduttori
230 m
Conservatorio di Musica Giuseppe Tartini di Trieste
290 m
Istituto Comprensivo Dante Alighieri
410 m
Università degli Studi di Trieste - Facoltà di Architettura e Psicologia
430 m
Scuola Elementare e Materna Ruggero Manna
460 m
Farmacia Farmacia
All'esculapio
70 m
Farmacia all'Orso Nero
140 m
Farmacia Comunale - Al Cedro
250 m
Farmacia Neri
310 m
Farmacia Alla Borsa
370 m
Ospedali Ospedali
Ospedale Maggiore
890 m
Sanatorio Triestino
1,6 Km
IRCCS Materno Infantile Burlo Garofolo
2,2 Km
Supermercati Supermercati
iN's mercato
70 m
Despar Express
140 m
Tigotà
240 m
Eurospesa
250 m
Aldi
380 m
Negozi Negozi
Negozi
150 m
Bottega del Mondo Senza Confini Brez meja
200 m
Mirella
210 m
Mazzorato Moda
260 m
Iana
420 m
Bar Bar
Bar Cattaruzza
170 m
Caffè alla Stazione
310 m
Bar Buffet Borsa
350 m
Colonial Café
360 m
Russian
370 m
Ristoranti Ristoranti
Buffet da Gildo
80 m
Baracca e burattini
100 m
Antico Panada
130 m
Ristorante Vittorio Veneto
170 m
Ristorante il Mangione
190 m
Mostra tutto

Caratteristiche

Rif.:
61108643
Piano:
2 di 4 con ascensore (Piano basso)
Camere da letto:
1
Arredamento:
Assente
Condizionamento:
Predisposizione impianto
Ascensore:
Mostra tutto
Prezzo Prezzo
€ 240.000
Rata mutuo Rata mutuo
€ 1.121 / mese
Proponi il tuo prezzoProponi il tuo prezzo

Classe Energetica

A4
A4
A4
A4
A4
A4
A4
A4
A4
EP invernale del fabbricato:
EP estiva del fabbricato:
Anno di costruzione:
2025
Riscaldamento:
Autonomo
Tipo impianto:
A pavimento
Tipo alimentazione:
Altro

Ti interessa visionare l'immobile?

Fissa un appuntamento  Fissa un appuntamento

Richiedi informazioni

Clicca su Leggi per aprire l'informativa
* Questi campi sono obbligatori

Calcola il tuo mutuo

Semplice e senza impegno
Anticipo

( % )
Mutuo

( % )

pochi semplici passi

inserisci i tuoi dati
Questionario completato
Grazie per aver richiesto un appuntamento senza impegno con un nostro Consulente del Credito e Assicurativo.

Hai inserito correttamente tutti i dati necessari e a breve riceverai una e-mail con un link da convalidare per inviare i tuoi dati.
Affiliato
Trieste Centro Srl
Via G.Carducci, 13 34122 Trieste (TS)

Il nostro staff


  • Vittorio Longo
    Affiliato

  • Erik Solinas
    Collaboratore
Via G.Carducci, 13 34122 Trieste (TS)
Zona: Trieste Centro-Borgo Teresiano-Giardino Pubblico
Mostra su mappa
Orari: da lunedì al venerdì dalle 9.00 alle 13.00 e dalle 15.30 alle 19.00, sabato dalle 9.00 alle 12.00.
Affiliato
Trieste Centro Srl
Via G.Carducci, 13 34122 Trieste (TS)

2026 Tecnocasa Franchising S.p.A. - P. IVA 08365160152 - Via Monte Bianco 60/A 20089 Rozzano (MI). Ogni agenzia ha un proprio titolare ed è autonoma. Privacy policy | Policy utilizzo | Cookie policy